CONTAINER MODULE UNIT

コンテナハウスとは
コンテナモジュールユニット

建築用コンテナハウス モジュールユニットとは?

従来の物資の運搬に使われる ISO海上コンテナとは異なり、弊社のモジュールユニットは建築確認申請に適合しうる商品です。構造設計一級建築士に設計を依頼し、 JIS鋼材を使用し 製品委託をし、一定基準以上の技能を持つ工場に生産委託をし、構造設計一級建築士の管理のもと製品を完成させます。一般的に普及している ISO海上コンテナは壁構造になっており、そのまま使用して建ててしまうと建築基準法違反になります。弊社の建築用コンテナハウス (モジュールユニット )はラーメン構造にて設計された建築物で建築基準に則って製造しています。確認申請を行い、確認済証の交付を受けます。意匠的には一般のコンテナと似ておりますが、構造的に大きく異なります。
CMU
ラーメン構造
コンテナ
シーエムユー
建築用コンテナハウスモジュールユニット
  • 基本サイズは20Fコンテナサイズです。モジュールW6,058×D2,438×H2,800
  • 既存の建築物とは異なり、工場内でおおよそ仕上げた状態で出荷する為、現場作業が少なく、短納期です。
  • ラーメン構造により堅牢性があり、安心・安全が確保されています。 耐震性、断熱性も既存建築物と同等にあります。
  • 太陽光パネルをのせることも可能で電気供給が可能です。
  • 連結タイプでは縦横自由にレイアウトすることができます。また2階建てまで積むことが可能です。これにより、広く大きなプランニングが可能です。
  • 連結タイプでは、屋根工事、連結工事(内装外装)の為、現場にて建築工事が必要です。
  • 別途基礎工事が必要です(建築確認申請が必要な際は)

EXAMPLE

モジュールユニットの活用例・施工例
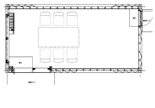
宿泊用
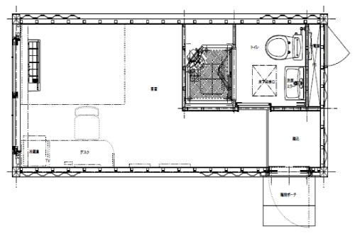
オフィス用
店舗イベント用
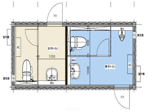
トイレユニット用

グランピング

ロッジ、バンガローの代わりにグランピング施設として活用できます。またホテルの増築など短期間で新たな宿泊施設を作ることが可能です。水回り設備を設置することにより、シングルルームが出来上がります。
ロッジ
バンガロー

オフィス用

打合せテーブルや作業用デスクを配置することで事務所として活用できます。断熱材が入っていますので、夏も冬もエアコンがあれば快適に過ごすことができます。
事務所
小部屋

店舗イベント用

厨房機器や水廻り設備・換気設備を強化することによりテイクアウトの飲食ブースに活用できます。また特産物PR用のブースやカラオケなどの趣味部屋など使用方法は様々です。
飲食ブース
カラオケ

トイレユニット

男女トイレユニットとして活用できます。浄化槽工事と組み合わせることにより、仮設トイレとは異なり高級感のある仕様になります。
便所
お手洗い